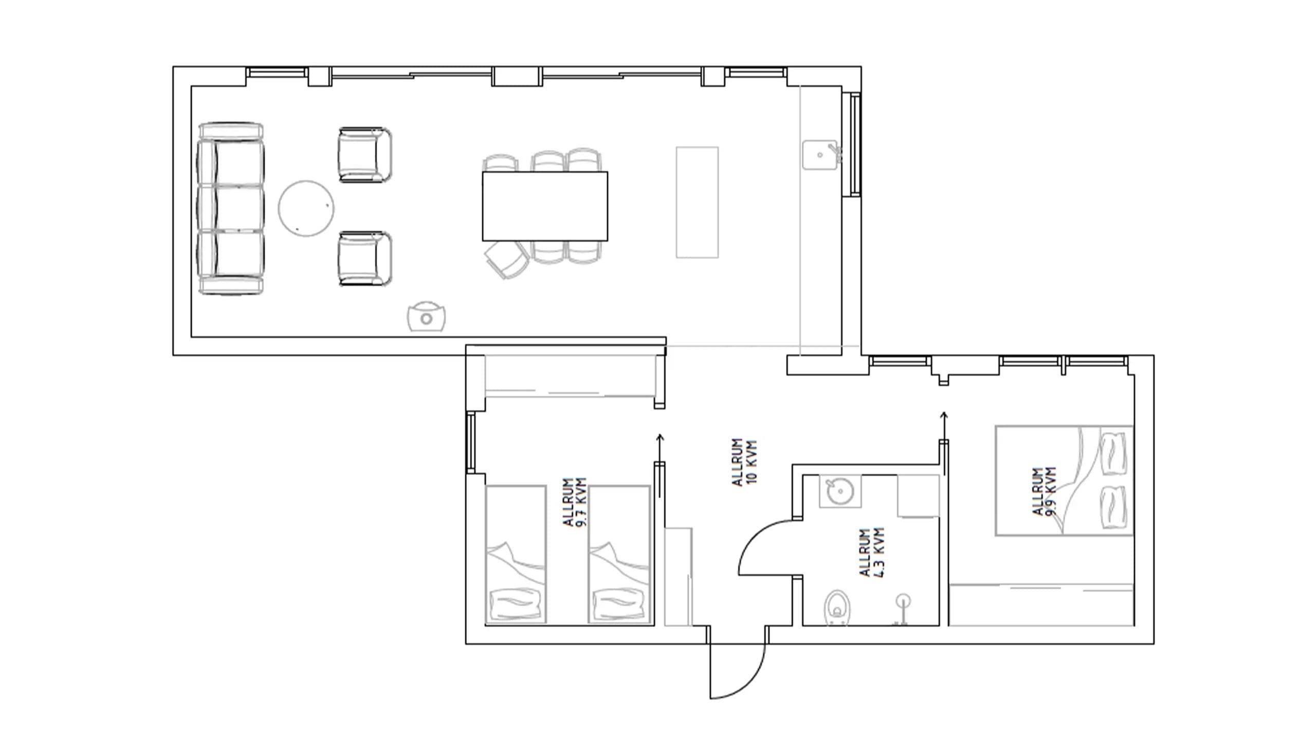
Skapa ditt drömfritidshus – en personlig resa med Formhus
Hos Formhus strävar vi efter att förverkliga din vision om det perfekta fritidshuset. Tillsammans med våra erfarna arkitekter utvecklar vi nyckelfärdiga fritidshus som kan anpassas för att uppfylla alla dina önskemål och krav. Vare sig du drömmer om en helt skräddarsydd design eller föredrar att utgå från en av våra befintliga modeller, är vi här för att stödja dig genom varje steg på vägen.
Från den första idén till det färdiga huset, kommer vi att vara med dig för att säkerställa att varje detalj motsvarar dina förväntningar. Våra arkitekter lyssnar noggrant på dina behov och använder sin expertis för att skapa en design som inte bara är estetiskt tilltalande, utan också funktionell och bekväm.
Vi är stolta över att använda endast material av högsta kvalitet i våra konstruktioner. Varje steg i byggprocessen övervakas noggrant för att säkerställa att allt håller högsta standard. Vår rigorösa kvalitetskontroll innebär att ditt fritidshus kommer att vara i absolut toppskick när det står klart för leverans.
















